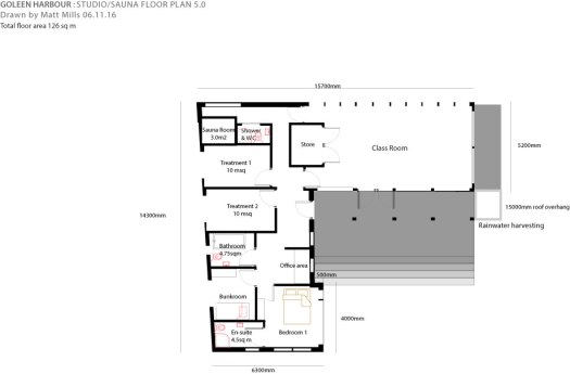
A selection from a number of building designs Matt produced for the development at Goleen Harbour all are designed to maximise solar gain without overheating, the Studio & Sauna building designs are draft.
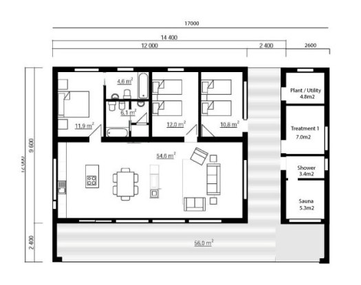
Matt designed Harbour House above and below as his own family home, it has been granted full planning permission. We hope to commence with construction of Harbour House in 2019.










